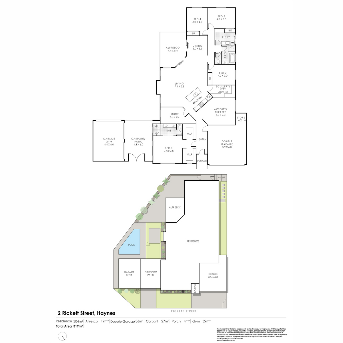
2 Rickett Street, Haynes
Welcome
2 Rickett Street, Haynes
					4 
						2 
						2 
					Land size: 623 sqm
					UNDER OFFER  
				
				Family Entertainer with Beautiful Park Views and a Pool
				
					UNDER OFFER by Ronnie Singh with Multiple Offers!
Welcome to this spacious family home, where you will be eager to entertain friends and family for anything from dinner parties to pool parties! With multiple large living spaces, a generous outdoor alfresco, and Balinese style pool area, you and your guests will experience your own private piece of paradise. Opposite the home is the beautiful Markwell Park, with vibrant Jacaranda trees, and plenty of luscious lawn to play on. Practically a second backyard that you get to enjoy without the maintenance that goes with it!
Inside the home, the high ceilings provide a sense of grandeur and fill the house with natural light. The master suite is a luxury retreat with laminate floors, and large double windows bordered by established palms. The wide entry to the master ensuite showcases the double vanity with cabinetry that complements the tones of the flooring. Beyond this, the ensuite also offers a double shower with contemporary feature tiling. Finished with a double walk-in wardrobe, this master suite is an elegantly designed space. The secondary bedrooms don't miss out, all with carpeted flooring, built-in wardrobes, and sharing the common bathroom with a built-in bathtub that has large edging, giving extra space for storing bath toys!
With a separate theatre room that can be easily converted into a playroom or activity space, as well as a separate study, this home has the space to cater to any family's needs! Moving into the heart of the home, you are sure to be impressed with the open plan kitchen, living and dining area. With laminate flooring, and a wall lined with windows, this space has a warm, welcoming feel, and offers views of the pool area, and lush Balinese style garden beds. The generous sized kitchen features stone benchtops, with a breakfast bar for casual dining, a sizeable built-in pantry, and a crisp white tiled splashback. There is plenty of space to allow cooking to be a collaborative family activity. When the rest of the family aren't helping with dinner, they can relax in the living area while they wait, watching the TV sitting snug in its statement wall recess. Dine inside in the comfort of air-conditioning, or head through the glass sliding doors and make the most of this magnificent backyard.
The large undercover alfresco area features café blinds and downlights so you can enjoy the space all year round, at any time of day! Looking over the pristine pool area, and the surrounding established treetops, you will feel like you have stepped into a tropical holiday destination. As well as a fantastic dining and swimming area, this backyard also has an undercover activity area around the side, perfect for a ping pong table. Open the double roller doors and reveal another usable undercover area, ideal for a home gym or workshop. The gates make it easy to drive through and have direct access to these areas for dropping off equipment, or for visitors!
This low maintenance backyard offers something for everyone, and is the perfect place for a kid's party, or to host a big family Christmas! Once you have had lunch, a dip in the pool, and a ping pong tournament, simply walk over the road for your very own shaded cricket pitch at the park! As well as the outdoor offerings, this home is modern and stylish on the inside, from the contemporary colour palettes to the luxury finishes. Topped off with solar panels, and a double garage with an additional storage recess, this home has all the extras! A floorplan that can grow with your family, and a lifestyle that you will love, this home is one you want to put on your Christmas wishlist!
SCHOOL CATCHMENT
Neerigen Brook Primary School (1.7km)
Armadale Senior High School (3.3km)
RATES
Council: $
Water: $1394 approx.
FEATURES
* Built Year: 2017 circa
* Total Built Area: 319 sqm
* High Ceilings Throughout
* LED Downlights in the Living Area
* Laminated Planks Flooring in Living Area and Master Suite
* Master Ensuite with Dual Vanity and Double Shower
* Master Bedroom with Double Walk-in Wardrobe
* Ducted Reverse Cycle Air Conditioning
* Large Living and Dining Areas for Entertaining
* Stone Benchtop with Breakfast Bar
* 5 Burner Gas Stove Top (Westinghouse)
* 900mm Oven (Westinghouse)
* Spacious Pantry
* Microwave Recess
* Separate Theatre Room or Activity Room
* Study
* Bedrooms 2, 3 and 4 with Built-in Wardrobes
* Carpeting in Secondary Bedrooms
* Laundry Area
* Entertainers Backyard
* Heated Swimming Pool (Chlorine & Salt)
* Alfresco Area with Blinds and Access to Neighbouring Park
* Balinese Style Hut
* Drive Through Side Gate Connecting Activity Area/Fitness Suite
* Solar Panels (So Far Solar, 9kw)
* Double Garage with Storage Recess
LIFESTYLE
150m – Xavier Catholic School
200m – Markwell Park
1.0km – Dale Christian College
1.1km – Sienna Wood Explorer Park
1.4km – Gwynne Park
1.7km – Shipwreck Park
1.8km – Taste of Italy Armadale
1.8km – Forrest Road GP
2.0km – Haynes Shopping Centre
2.8km – Armadale Central Shopping Centre
3.4km – Ye Olde Narrogin Inne
4.5km – Armadale Fitness and Aquatic Centre
7.2km – Champion Lakes
9.0km – Forestdale Lake Nautre Reserve
		Welcome to this spacious family home, where you will be eager to entertain friends and family for anything from dinner parties to pool parties! With multiple large living spaces, a generous outdoor alfresco, and Balinese style pool area, you and your guests will experience your own private piece of paradise. Opposite the home is the beautiful Markwell Park, with vibrant Jacaranda trees, and plenty of luscious lawn to play on. Practically a second backyard that you get to enjoy without the maintenance that goes with it!
Inside the home, the high ceilings provide a sense of grandeur and fill the house with natural light. The master suite is a luxury retreat with laminate floors, and large double windows bordered by established palms. The wide entry to the master ensuite showcases the double vanity with cabinetry that complements the tones of the flooring. Beyond this, the ensuite also offers a double shower with contemporary feature tiling. Finished with a double walk-in wardrobe, this master suite is an elegantly designed space. The secondary bedrooms don't miss out, all with carpeted flooring, built-in wardrobes, and sharing the common bathroom with a built-in bathtub that has large edging, giving extra space for storing bath toys!
With a separate theatre room that can be easily converted into a playroom or activity space, as well as a separate study, this home has the space to cater to any family's needs! Moving into the heart of the home, you are sure to be impressed with the open plan kitchen, living and dining area. With laminate flooring, and a wall lined with windows, this space has a warm, welcoming feel, and offers views of the pool area, and lush Balinese style garden beds. The generous sized kitchen features stone benchtops, with a breakfast bar for casual dining, a sizeable built-in pantry, and a crisp white tiled splashback. There is plenty of space to allow cooking to be a collaborative family activity. When the rest of the family aren't helping with dinner, they can relax in the living area while they wait, watching the TV sitting snug in its statement wall recess. Dine inside in the comfort of air-conditioning, or head through the glass sliding doors and make the most of this magnificent backyard.
The large undercover alfresco area features café blinds and downlights so you can enjoy the space all year round, at any time of day! Looking over the pristine pool area, and the surrounding established treetops, you will feel like you have stepped into a tropical holiday destination. As well as a fantastic dining and swimming area, this backyard also has an undercover activity area around the side, perfect for a ping pong table. Open the double roller doors and reveal another usable undercover area, ideal for a home gym or workshop. The gates make it easy to drive through and have direct access to these areas for dropping off equipment, or for visitors!
This low maintenance backyard offers something for everyone, and is the perfect place for a kid's party, or to host a big family Christmas! Once you have had lunch, a dip in the pool, and a ping pong tournament, simply walk over the road for your very own shaded cricket pitch at the park! As well as the outdoor offerings, this home is modern and stylish on the inside, from the contemporary colour palettes to the luxury finishes. Topped off with solar panels, and a double garage with an additional storage recess, this home has all the extras! A floorplan that can grow with your family, and a lifestyle that you will love, this home is one you want to put on your Christmas wishlist!
SCHOOL CATCHMENT
Neerigen Brook Primary School (1.7km)
Armadale Senior High School (3.3km)
RATES
Council: $
Water: $1394 approx.
FEATURES
* Built Year: 2017 circa
* Total Built Area: 319 sqm
* High Ceilings Throughout
* LED Downlights in the Living Area
* Laminated Planks Flooring in Living Area and Master Suite
* Master Ensuite with Dual Vanity and Double Shower
* Master Bedroom with Double Walk-in Wardrobe
* Ducted Reverse Cycle Air Conditioning
* Large Living and Dining Areas for Entertaining
* Stone Benchtop with Breakfast Bar
* 5 Burner Gas Stove Top (Westinghouse)
* 900mm Oven (Westinghouse)
* Spacious Pantry
* Microwave Recess
* Separate Theatre Room or Activity Room
* Study
* Bedrooms 2, 3 and 4 with Built-in Wardrobes
* Carpeting in Secondary Bedrooms
* Laundry Area
* Entertainers Backyard
* Heated Swimming Pool (Chlorine & Salt)
* Alfresco Area with Blinds and Access to Neighbouring Park
* Balinese Style Hut
* Drive Through Side Gate Connecting Activity Area/Fitness Suite
* Solar Panels (So Far Solar, 9kw)
* Double Garage with Storage Recess
LIFESTYLE
150m – Xavier Catholic School
200m – Markwell Park
1.0km – Dale Christian College
1.1km – Sienna Wood Explorer Park
1.4km – Gwynne Park
1.7km – Shipwreck Park
1.8km – Taste of Italy Armadale
1.8km – Forrest Road GP
2.0km – Haynes Shopping Centre
2.8km – Armadale Central Shopping Centre
3.4km – Ye Olde Narrogin Inne
4.5km – Armadale Fitness and Aquatic Centre
7.2km – Champion Lakes
9.0km – Forestdale Lake Nautre Reserve
Floor Plan
Comparable Sales
 
                                                            
                                                                3 Avalanche Loop, Haynes, WA 6112, Haynes
                                                            
                                                            4 
																	
                                                                    
                                                                        3 
                                                                    
                                                                        2 
                                                                    	
                                                                Land size: 450
                                                                    
                                                                    Sold on: 04/07/2024
                                                                    
                                                                    
                                                                        Days on Market: 48
                                                                    
                                                                    
                                                                    
                                                                
                                                                            
                                                                            $780,000
                                                                        
		
                                                                        
                                                                SOLD
																
																	SOLD!
																
                                                             
                                                            
                                                                60 Burdekin Turn, Hilbert, WA 6112, Hilbert
                                                            
                                                            4 
																	
                                                                    
                                                                        2 
                                                                    
                                                                        2 
                                                                    	
                                                                Land size: 480
                                                                    
                                                                    Sold on: 14/07/2024
                                                                    
                                                                    
                                                                        Days on Market: 47
                                                                    
                                                                    
                                                                    
                                                                
                                                                            
                                                                            $785,000
                                                                        
		
                                                                        
                                                                SOLD
																
																	785000
																
                                                             
                                                            
                                                                15 Mandalup Road, Haynes, WA 6112, Haynes
                                                            
                                                            4 
																	
                                                                    
                                                                        3 
                                                                    
                                                                        2 
                                                                    	
                                                                Land size: 583
                                                                    
                                                                    Sold on: 19/09/2024
                                                                    
                                                                    
                                                                        Days on Market: 64
                                                                    
                                                                    
                                                                    
                                                                
                                                                            
                                                                            $830,000
                                                                        
		
                                                                        
                                                                SOLD
																
																	830000
																
                                                             
                                                            
                                                                4 Koojan Street, Haynes, WA 6112, Haynes
                                                            
                                                            4 
																	
                                                                    
                                                                        2 
                                                                    
                                                                        2 
                                                                    	
                                                                Land size: 458
                                                                    
                                                                    Sold on: 23/07/2024
                                                                    
                                                                    
                                                                        Days on Market: 29
                                                                    
                                                                    
                                                                    
                                                                
                                                                            
                                                                            $802,000
                                                                        
		
                                                                        
                                                                SOLD
																
																	802000
																
                                                             
                                                            
                                                                4 Rickett Street, Haynes, WA 6112, Haynes
                                                            
                                                            4 
																	
                                                                    
                                                                        3 
                                                                    
                                                                        2 
                                                                    	
                                                                Land size: 456
                                                                    
                                                                    
                                                                        Days on Market: 373
                                                                    
                                                                    
                                                                    
                                                                
                                                                            
                                                                            $825,000
                                                                        
		
                                                                        
                                                                FOR SALE
																
																	Offers From $799,000
																
                                                             
                                                            
                                                                10 Rickett Street, Haynes, WA 6112, Haynes
                                                            
                                                            4 
																	
                                                                    
                                                                        2 
                                                                    
                                                                        4 
                                                                    	
                                                                Land size: 456
                                                                    
                                                                    
                                                                        Days on Market: 359
                                                                    
                                                                    
                                                                    
                                                                FOR SALE
																
																	$780,000 - $820,000
																
                                                            This information is supplied by First National Group of Independent Real Estate Agents Limited (ABN 63 005 942 192) on behalf of Proptrack Pty Ltd (ABN 43 127 386 295). Copyright and Legal Disclaimers about Property Data.
Team Genesis
 
                        
						
                     
                        
						
                     
                        
						
                     
                        
						
                     
                        
						
                     
                        
						
                    Team Genesis Recent Sales
 
                        
								38 Kellogg Drive, Piara Waters 
							
                            
                            
								4 
									
										2 
									
										2 
									
								UNDER OFFER
							
                         
                        
								11 Southampton Drive, Piara Waters 
							
                            
                            
								4 
									
										2 
									
										2 
									
								Under Offer
							
                         
                        
								60 Archdale Loop, Piara Waters 
							
                            
                            
								4 
									
										2 
									
										2 
									
								Under Offer
							
                         
                        
								141 Huntingdale Road, Huntingdale 
							
                            
                            
								4 
									
										2 
									
										2 
									
								Under Offer
							
                         
                        
								40 Firefalls Close, Huntingdale 
							
                            
                            
								4 
									
										2 
									
										2 
									
								UNDER OFFER !
							
                         
                        
								14 Calamocha Way, Piara Waters 
							
                            
                            
								4 
									
										2 
									
										2 
									
								Under Offer
							
                         
                        
								12 Hambly Crescent, Canning Vale 
							
                            
                            
								4 
									
										2 
									
										2 
									
								End Date Process
							
                         
                        
								2 Kelpie Way, Southern River 
							
                            
                            
								4 
									
										2 
									
										2 
									
								Under Offer
							
                         
                        
								6 Kelpie Way, Southern River 
							
                            
                            
								3 
									
										2 
									
										2 
									
								UNDER OFFER
							
                         
                        
								47 Millstream Drive, Southern River 
							
                            
                            
								4 
									
										2 
									
										2 
									
								End Date Process
							
                         
                        
								58 Archdale Loop, Piara Waters 
							
                            
                            
								4 
									
										2 
									
										2 
									
								Under Offer
							
                         
                        
								15 Dortmund Gardens, Piara Waters 
							
                            
                            
								4 
									
										2 
									
										2 
									
								UNDER OFFER
							
                         
                        
								14 Marseille Gardens, Piara Waters 
							
                            
                            
								4 
									
										2 
									
										2 
									
								SOLD
							
                         
                        
								17 Leroy Way, Piara Waters 
							
                            
                            
								4 
									
										2 
									
										2 
									
								Under Offer
							
                         
                        
								11 Isla Place, Piara Waters 
							
                            
                            
								3 
									
										2 
									
										1 
									
								Under Offer
							
                         
                        
								16 Hickman Drive, Piara Waters 
							
                            
                            
								4 
									
										2 
									
										2 
									
								Under Offer
							
                         
                        
								1D Basalt Road, Harrisdale 
							
                            
                            
								4 
									
										2 
									
										1 
									
								Under Offer
							
                         
                        
								6 Carbeen View, Piara Waters 
							
                            
                            
								4 
									
										2 
									
										2 
									
								Under Offer
							
                         
                        
								3A Fanshawe Boulevard, Piara Waters 
							
                            
                            
								3 
									
										2 
									
										2 
									
								Under Offer
							
                         
                        
								21 Lignite Avenue, Piara Waters 
							
                            
                            
								4 
									
										2 
									
										2 
									
								Under Offer
							
                         
                        
								51 Yellowwood Avenue, Piara Waters 
							
                            
                            
								4 
									
										2 
									
										2 
									
								Under Offer
							
                         
				
				 
			



































 
						
 
						
 
						